| Beschreibung: | Download: | | Vorschau: | |
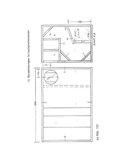
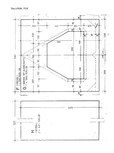
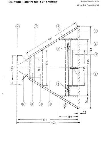
Einzelteile und Bauanleitung für das Eckhorn mit 15" Treiber (nach Klipsch) nur Bassteil |  | Klipsch Horn (1,7 MB) |  |  |
Einzelteile und Bauanleitung für das Eckhorn mit 15" Treiber (nach Klipsch) Standard Version |  | Klipsch Horn Standard (7,36 MB) |  |  |
| Bauplan für das Schmacks Horn |  | Schmacks Horn (504 KB) |  |  |
Bauplan für das La Scala Horn nur Bassteil |  | La Scala Horn (368 KB) |  |  |
Bauplan für das Hedlund Horn von Jan Hedlund |  | Hedlund Horn (42 KB) |  |  |
Einzelteile und Bauanleitung für den Karlson Coupler |  | Karlson Coupler (10,7 MB) |  |  |